top of page

Zhongzheng Office

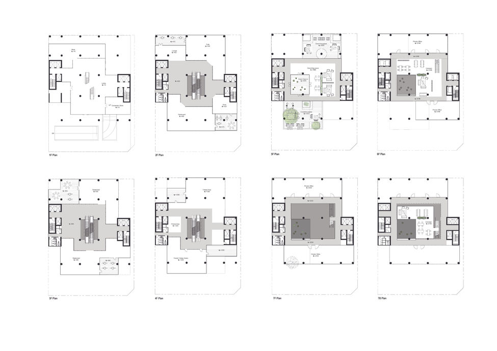
Co-working office spaces are surrounded by hidden gardens in the center around lounges that act as relaxing social spaces and thermal ventilation.

Location

Area

: Zhongzheng District, Taipei

: 1890 m²

Perspective Exterior 5.png

FAQ

William Chandra Architecture
All rights reserved

  • Instagram
  • Facebook
  • LinkedIn
  • YouTube
bottom of page